•Home

•Painting
•Drawings
•Poetry
•Workshop
•Sculpture
•Fiction
•Architecture
•Contact

 

Hae House was part of a project (I made up for myself) to be built in South Africa circa 1986. It was designed as one of the smaller houses to be built in a planned suburban neighborhood. Each house would have front porches, swings and broad sidewalks. At the time I designed it to combine classical bungalow features with strong family-village structure. I actually thought about a straw-hut/village life and combined that with a bungalow. It is designed with the notion that labor is cheaper than materials, and fine design is attainable through fine craftsmanship. It is “below spec” in size by US standards, but I conceived this plan for reasons. One reason was that I wanted all activity inside to be regulated by the person using the kitchen, and while the children’s bed rooms are designated ‘boys dorm’ and ‘girls dorm’, there is also a ‘nursery/office/sewing’ room. The idea was to encourage having fewer children. Please note, the house has a piano and a small library. Since ‘86, however, I have concluded that the size of this house is not practical.

 


Hae House Perspective

 

Hae House & Luster Residence Site Plans


Hae House Foundation & Roof Framing Plan


Hae House Floor Plan

Hae House Sections


Hae House Elevations


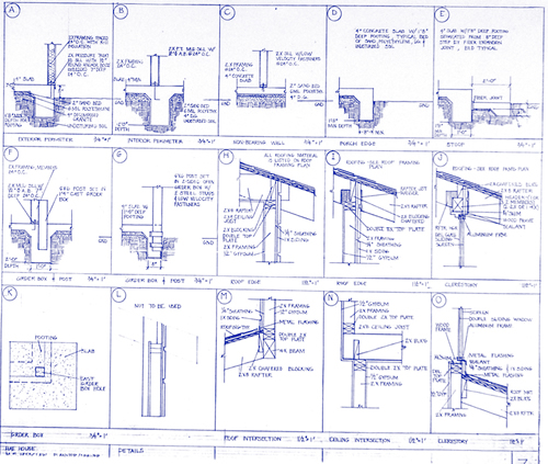
Hae House Details

Home