•Home

•Painting
•Drawings
•Poetry
•Comedy

•Workshop
•Sculpture
•Fiction
•Architecture
•Contact

 

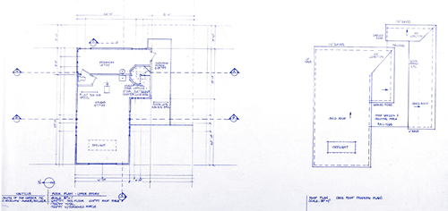
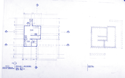
Nautilus is a house, which I designed for myself (1987). It is designed to be on the rocky coast near Bar Harbor, Maine (or at least beside a lake). It is an odd house in that it has a garage door on the second floor (to lower large paintings by pulley and to upload materials), a kitchen in the basement (with dumb waiter!), a tiny circular staircase to the upstairs bedroom (mine) and the studio, and is heated with a soapstone wood furnace. The finer points of this design are the roof plan, the elevations and the windows and double porch.

 

 

 

Nautilus Elevation

 


Nautilus 2nd floor plan & roof plan


Nautilus Main Floor Plan


Nautilus Foundations Basement


Nautilus Section

Home